金沙洲小岛中式家居设计,文化底蕴打造传统宜居空间

设计产品

咨询热线

装修案例
当前位置: 首页 > 设计产品
金沙洲小岛中式家居设计,文化底蕴打造传统宜居空间

发布时间:2026-03-11 08:04:33  点击量:

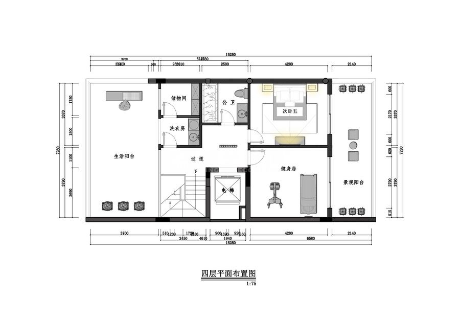
设计理念
位于金沙洲的小岛的家,何老师崔老师的文化底蕴,支撑这个富有传统色彩的中式宜居空间,过程中和设计师的深入互动也是实景落地的法宝
客厅
金沙洲小岛中式家居设计,文化底蕴打造传统宜居空间(图1) 金沙洲小岛中式家居设计,文化底蕴打造传统宜居空间(图2) 金沙洲小岛中式家居设计,文化底蕴打造传统宜居空间(图3) 金沙洲小岛中式家居设计,文化底蕴打造传统宜居空间(图4) 金沙洲小岛中式家居设计,文化底蕴打造传统宜居空间(图5) 金沙洲小岛中式家居设计,文化底蕴打造传统宜居空间(图6)
客厅
6张
餐厅
金沙洲小岛中式家居设计,文化底蕴打造传统宜居空间(图7) 金沙洲小岛中式家居设计,文化底蕴打造传统宜居空间(图8)
餐厅
2张
玄关
金沙洲小岛中式家居设计,文化底蕴打造传统宜居空间(图9)
玄关
1张
儿童房
金沙洲小岛中式家居设计,文化底蕴打造传统宜居空间(图10) 金沙洲小岛中式家居设计,文化底蕴打造传统宜居空间(图11) 金沙洲小岛中式家居设计,文化底蕴打造传统宜居空间(图12) 金沙洲小岛中式家居设计,文化底蕴打造传统宜居空间(图13)
儿童房
4张
主人房
金沙洲小岛中式家居设计,文化底蕴打造传统宜居空间(图14) 金沙洲小岛中式家居设计,文化底蕴打造传统宜居空间(图15) 金沙洲小岛中式家居设计,文化底蕴打造传统宜居空间(图16) 金沙洲小岛中式家居设计,文化底蕴打造传统宜居空间(图17) 金沙洲小岛中式家居设计,文化底蕴打造传统宜居空间(图18)
主人房
5张
书房
金沙洲小岛中式家居设计,文化底蕴打造传统宜居空间(图19) 金沙洲小岛中式家居设计,文化底蕴打造传统宜居空间(图20) 金沙洲小岛中式家居设计,文化底蕴打造传统宜居空间(图21) 金沙洲小岛中式家居设计,文化底蕴打造传统宜居空间(图22) 金沙洲小岛中式家居设计,文化底蕴打造传统宜居空间(图23)
书房
5张
案例展示
金沙洲小岛中式家居设计,文化底蕴打造传统宜居空间(图24) 金沙洲小岛中式家居设计,文化底蕴打造传统宜居空间(图25) 金沙洲小岛中式家居设计,文化底蕴打造传统宜居空间(图26) 金沙洲小岛中式家居设计,文化底蕴打造传统宜居空间(图27) 金沙洲小岛中式家居设计,文化底蕴打造传统宜居空间(图28)
案例展示
5张