船舶经纪办公空间设计,打造无等级开放式工作环境

设计产品

咨询热线

装修案例
当前位置: 首页 > 设计产品
船舶经纪办公空间设计,打造无等级开放式工作环境

发布时间:2026-03-11 08:04:29  点击量:

设计理念
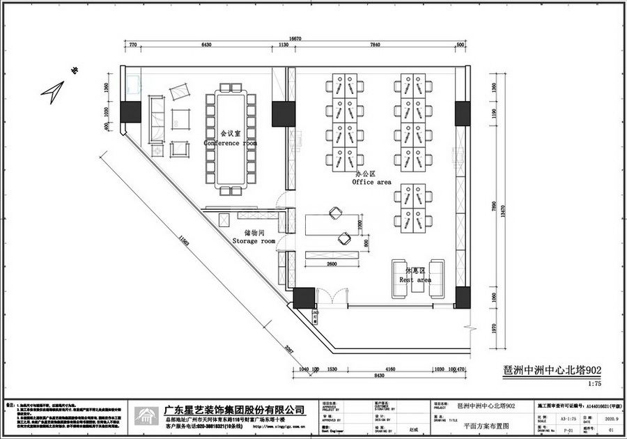
MAVEGA GROUP 是一家船舶经纪为主营业务的英国企业,中国区负责人Tiger希望给与办公空间一个符合行业属性的定位,时差原因办公时间会直至深夜,整个办公空间对于员工以及客户的一个娱乐性、舒适性及其重要,办公空间按照”家”的属性要求,给予了更多的可能性,整个项目只分为两个大空间,大开放没有等级区分的办公区域、水吧、极具关怀的零食柜都能完美诠释Tiger对于办公生活的特殊要求,另一个空间具有会议和接待功能,昨天仍在海上乘风破浪的船长也许今天和Tiger一起慵懒在MAVEGA的沙发一起品味勃艮第的红酒。Tiger的空间期待得到完整的呈现,设计本是设计师与甲方共同的作品,使得不同行业、不同认知的个体趋于融合统一。
案例展示
船舶经纪办公空间设计,打造无等级开放式工作环境(图1) 船舶经纪办公空间设计,打造无等级开放式工作环境(图2) 船舶经纪办公空间设计,打造无等级开放式工作环境(图3) 船舶经纪办公空间设计,打造无等级开放式工作环境(图4) 船舶经纪办公空间设计,打造无等级开放式工作环境(图5) 船舶经纪办公空间设计,打造无等级开放式工作环境(图6) 船舶经纪办公空间设计,打造无等级开放式工作环境(图7) 船舶经纪办公空间设计,打造无等级开放式工作环境(图8) 船舶经纪办公空间设计,打造无等级开放式工作环境(图9) 船舶经纪办公空间设计,打造无等级开放式工作环境(图10) 船舶经纪办公空间设计,打造无等级开放式工作环境(图11) 船舶经纪办公空间设计,打造无等级开放式工作环境(图12) 船舶经纪办公空间设计,打造无等级开放式工作环境(图13) 船舶经纪办公空间设计,打造无等级开放式工作环境(图14) 船舶经纪办公空间设计,打造无等级开放式工作环境(图15) 船舶经纪办公空间设计,打造无等级开放式工作环境(图16) 船舶经纪办公空间设计,打造无等级开放式工作环境(图17) 船舶经纪办公空间设计,打造无等级开放式工作环境(图18) 船舶经纪办公空间设计,打造无等级开放式工作环境(图19) 船舶经纪办公空间设计,打造无等级开放式工作环境(图20) 船舶经纪办公空间设计,打造无等级开放式工作环境(图21) 船舶经纪办公空间设计,打造无等级开放式工作环境(图22) 船舶经纪办公空间设计,打造无等级开放式工作环境(图23) 船舶经纪办公空间设计,打造无等级开放式工作环境(图24) 船舶经纪办公空间设计,打造无等级开放式工作环境(图25) 船舶经纪办公空间设计,打造无等级开放式工作环境(图26) 船舶经纪办公空间设计,打造无等级开放式工作环境(图27)
案例展示
27张